Примерные цены на вентиляционные системы
Мы собрали для вас примеры своих проектов с ценами, чтобы вы сразу могли сориентироваться по стоимости установки системы вентиляции для своего частного дома, коттеджа или квартиры.
При точном расчете наши инженеры учитывают местоположение дома, высоту потолков, размер окон, количество людей постоянно проживающих и приходящих. Так же на цену влияет выбор бренда оборудования, которое подбирается под особенности помещения.
квартиры
двухкомнатная квартира 65 м2
В квартире смонтирована приточно-вытяжная вентиляция.
За поступление и удаление воздуха отвечает вентиляционная установка TURKOV (Турков) Zenit Heco V 750 E (Steel) в стальном корпусе.
Стоимость материала - 1 300 000 руб
стоимость монтажа - 390 000 руб
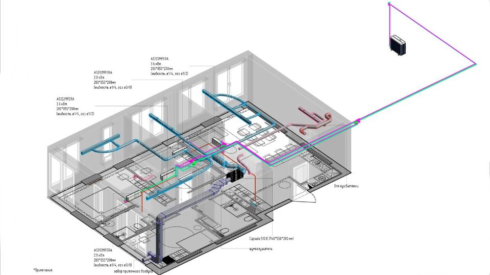
двухкомнатная Квартира - 100м2
Проект приточной вентиляции с установкой Турков и системы кондиционирования в двухкомнатной квартире.
Приточная установка CAPSULE 510 E
Стоимость материала - 850 000 руб
стоимость монтажа - 350 000 руб
стоимость монтажа - 350 000 руб
частные дома
Двухэтажный дом 230 м2
В двухэтажном доме смонтирована приточно - вытяжная система вентиляции.
Для того, чтобы в будущем Заказчик смог сэкономить на отоплении выбрали приточно - вытяжную вентиляционную установку с рекуперацией тепла и сохранением влаги. Оснащается электрическим нагревателем и трёхступенчатым рекуператором.
Приточно - вытяжная установка Zenit Heco X 910
Стоимость материала - 1 400 000 руб
стоимость монтажа - 1 000 000 руб
Для того, чтобы в будущем Заказчик смог сэкономить на отоплении выбрали приточно - вытяжную вентиляционную установку с рекуперацией тепла и сохранением влаги. Оснащается электрическим нагревателем и трёхступенчатым рекуператором.
Приточно - вытяжная установка Zenit Heco X 910
Стоимость материала - 1 400 000 руб
стоимость монтажа - 1 000 000 руб
Двухэтажный дом - 400 м2
В двухэтажном доме смонтирована приточно - вытяжная система вентиляции.
Для того, чтобы в будущем Заказчик смог сэкономить на отоплении выбрали приточно - вытяжную вентиляционную установку с рекуперацией тепла и сохранением влаги.Оснащается электрическим нагревателем и трёхступенчатым рекуператором.
Приточно - вытяжная установка Zenit Heco X 910
Стоимость материала - 2 200 000 руб
стоимость монтажа - 1 000 000 руб
стоимость монтажа - 1 000 000 руб
Двухэтажный дом - 600 м2
В двухэтажном доме смонтирована приточно - вытяжная система вентиляции.
Для того, чтобы в будущем Заказчик смог сэкономить на отоплении выбрали две приточно - вытяжных вентиляционных установки с рекуперацией тепла, сохранением влаги и встроенной автоматикой. Оснащается электрическим нагревателем и трёхступенчатым рекуператором.
Стоимость материала - 3 200 000 руб
стоимость монтажа - 1 300 000 руб
Для того, чтобы в будущем Заказчик смог сэкономить на отоплении выбрали две приточно - вытяжных вентиляционных установки с рекуперацией тепла, сохранением влаги и встроенной автоматикой. Оснащается электрическим нагревателем и трёхступенчатым рекуператором.
Приточно - вытяжная установка Zenit Heco X 910 иTurkov Zenit 2000 EL/EL HECO W
Стоимость материала - 3 200 000 руб
стоимость монтажа - 1 300 000 руб
другие постройки
Баня 70 м2
Отдельно стоящее здание бани из клееного бруса. Смонтирована система приточно - вытяжная система вентиляции и кондиционирования.
Установлена Zenit Heco VM 350 — приточно-вытяжная вентиляционная установка с рекуперацией тепла и влаги.
Стоимость материала - 1 300 000 руб
стоимость монтажа - 700 000 руб
стоимость монтажа - 700 000 руб